Apartment in El Verger
€395 000
El Verger, Alicante
Description
NEW BUILD RESIDENTIAL IN EL VERGEL
New Build residential complex of 1, 2 and 3 bedrooms apartments and penthouses in El Vergel designed as compact structures a response to the architects and designers constant pursuit of efficiency in the development. These decisions, spread throughout the various key points of the residential area, ensure that your home stays at the right temperature both in winter and summer.
The main feature of the properties will be their large terraces. With regular proportions, they are the ideal spaces for outdoor living. The integration of the living room with these spacious terraces will unite your home as a livable volume where the interior merges with the exterior.
Moreover, the construction in the area is planned to have minimal impact. The careful selection of construction materials has allowed you to enjoy the extraordinary views offered by the natural environment of residential complex permanently.
Properties organized around a living room open to a terrace-bedroom. Live inside and outside the house.
The common areas of this complex embody a deeply natural spirit. As you walk through different areas, you’ll find ideal spaces for strolling, engaging in sports activities, and, above all, using bicycles.
Gather with your partner, family, or friends at the social clubs; enjoy open squares protected from the sun and unwind in cool spots where vegetation thrives and air constantly circulates.
What else? Take note: ample and numerous swimming pools scattered throughout the residential area, sensory gardens, spaces for yoga practice, self-consumption vegetable gardens, bicycle workshops, and pet washing zones.
Always seeking the utmost respect for nature, the project is conceived with brilliant sustainable strategies: rainwater collection, channeling, and reuse systems that will give life to a lush sustainable ecosystem; refreshing gardens with native species that require minimal maintenance; large surfaces of photovoltaic panels for self-consumption energy generation; even multiple charging stations for electric mobile vehicles.
Luxury is having everything you need while respecting the surrounding ecosystem.
All residents of this complex will have access to the Beach Club on the beachfront. Space, where they can organize their own events, have a charging point and parking for electric bikes, store nautical equipment, lockers, and take a shower or dip in the pool after enjoying the sea. A gateway to the sea on the shores of La Almadraba beach in Denia.
Just a few meters from La Almadraba beach in El Verger and a few kilometers from Denia, a project is born that defies convention. Its intention is nothing less than making the impossible a reality: a residential development that aspires to become a sustainable, healthy, and respectful community.
Features
Additional features
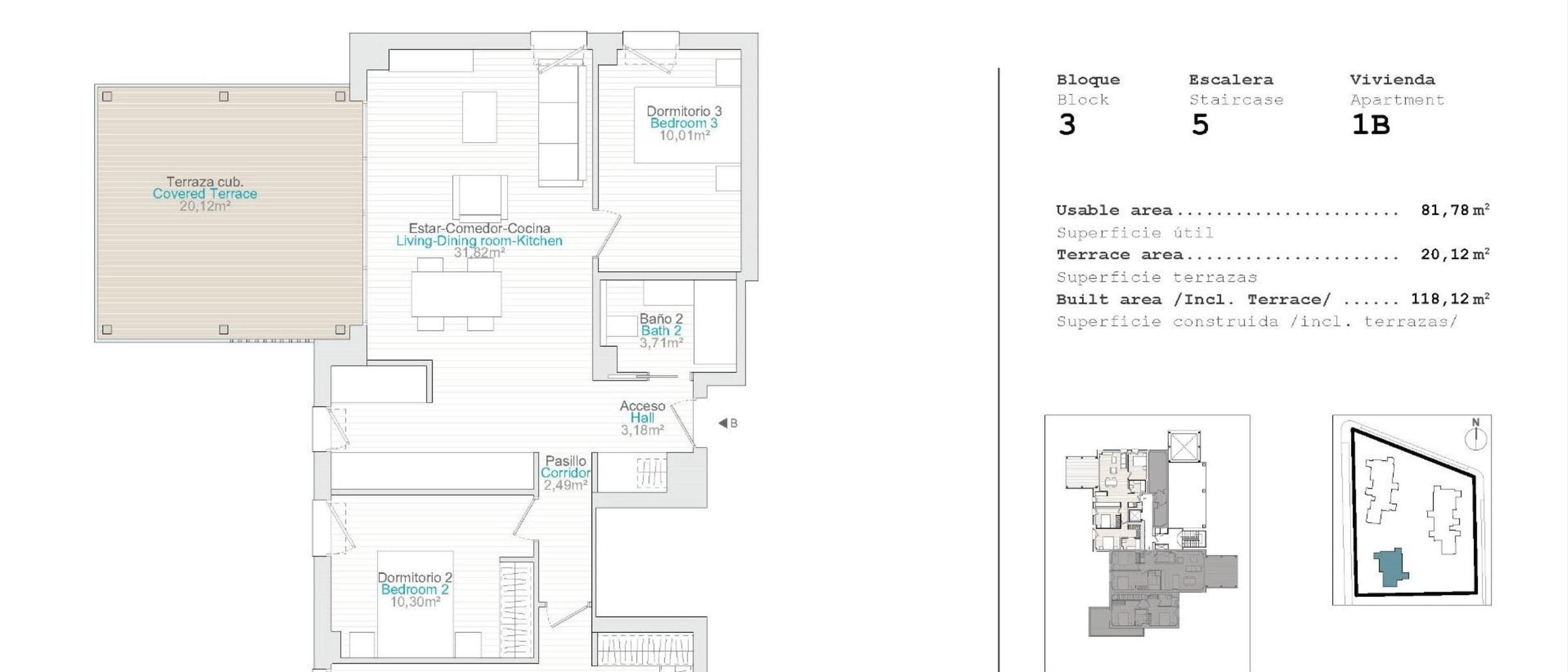
Elevator/Lift•Communal Pool•Gated•Terrace: 20 Msq.•Parking - Space•Number of Parking Spaces: 1•Beach: 400 Meters•Near Schools•Near Childrens Parks•Near Commercial Center•Location: Coastal, Urbanisation•Useable Build Space: 81 Msq.•Air Conditioning: Yes•Gym•Double Bedrooms: 3





