Apartment in Vera
€325 000
Vera, Almería
Description
NEW BUILD RESIDENTIAL COMPLEX IN VERA
New Build residential of apartments in Vera just 400m from the huge Vera beach named "El Playazo".
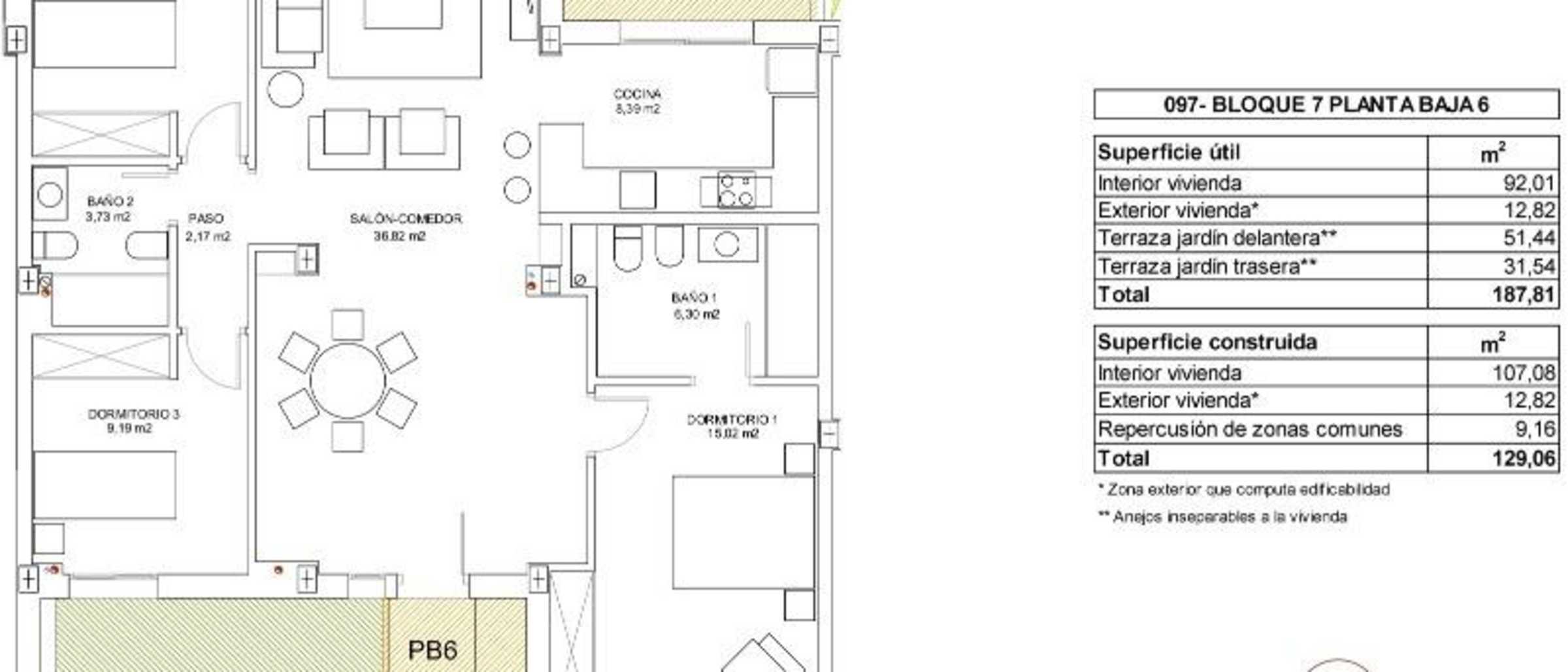
The typologies are ground floor with two private gardens, one in each orientation, which allows you to enjoy sun or shade whenever you want depending on the time of day or the season of the year. The first floors have terraces and the penthouses have large solariums.
All the apartments have extra height ceilings (2.95 m) providing a great feeling of spaciousness.
The kitchen comes fully furnished and equipped integrated with the living-dining area with a bar area.
The doors and fitted wardrobes are lacquered in white and the floor is made of laminated wood.
The hot-cold air conditioning and the hot water are generated by a state-of-the-art DAIKIN Aerothermal device, a technology that saves up to 70% of electricity consumption compared to traditional systems.
All bathrooms come with a shower instead of a bathtub, with recessed mirrors and also with a stone countertop and glass partition in the main bathroom.
The blinds in the living room and master bedroom are electric, hermetically sealed and with adjustable slats.
The gardens and solarium are delivered with the floors finished combining artificial grass and a beautiful paving imitating wood.
Each house includes a private outdoor parking space.
Each block of the promotion has an independent elevator.
Both the buildings and the apartments have a series of bioclimatic architecture characteristics (orientation, insulation, windows and shutters, pergolas) that allow optimal natural regulation of ventilation, temperature and light throughout the different seasons of the year.
The communal areas are made up of pedestrian squares and green areas, with a large swimming pool for adults and another for children in the central square.
The entire urbanization is free of architectural barriers for the disabled. Here tranquillity and relaxation are guaranteed.
Vera is one of the best naturist places in Europe, recognized for the quality and purity of their waters.
It offers six kilometres of beaches (Las Marinas-Bolaga, Puerto Rey, El Playazo, Quitapellejos).
Vera bordering with the famous tourist destinations such as Mojacar and the Almanzora Caves.
Residential complex located about 1,5 hour drive away from Murcia - Corvera airport and about 2 hours away from Alicante airport.
Features
Additional features
Elevator/Lift•Communal Pool•Garden•Gated•Terrace: 66 Msq.•Parking - Space•Number of Parking Spaces: 1•Beach: 400 Meters•Location: Coastal, Urbanisation•Useable Build Space: 95 Msq.•Air Conditioning: Pre-Installed•Gym•Double Bedrooms: 3





