Apartment in Pilar de La Horadada
€419 900
Pilar de La Horadada, Alicante
Description
Luxury Tourist Apartments Just 150m from Las Higuericas Beach – Torre de la Horadada
Exclusive New Development with Rental License Included Welcome to a new residential complex in Torre de la Horadada, just 150 meters from the golden sands of Las Higuericas Beach. This modern project offers 48 fully furnished tourist apartments, all delivered with a short-term rental license, making it an ideal investment for holiday rentals or personal enjoyment.
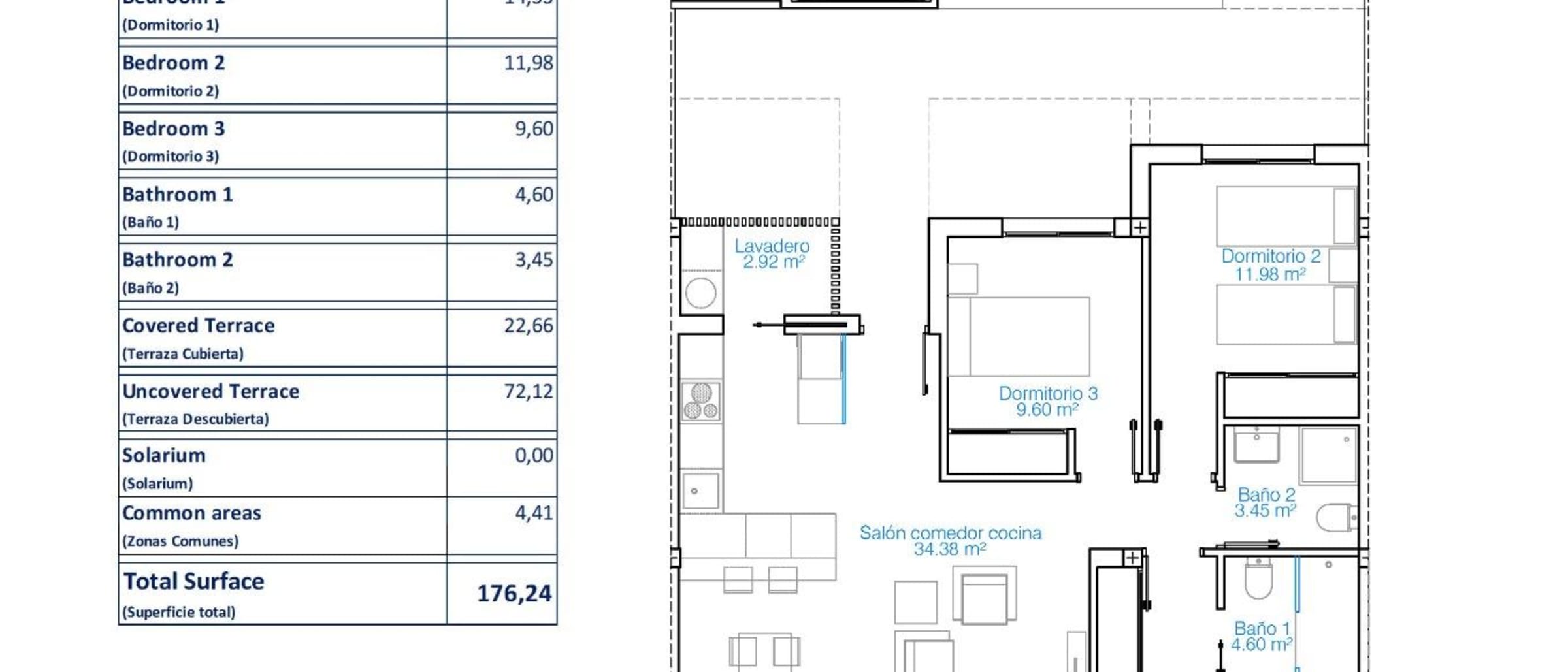
Choose from 42 units with 3 bedrooms and 2 bathrooms or 6 units with 2 bedrooms and 2 bathrooms, all thoughtfully designed to maximize comfort, style, and functionality.
Layouts Designed for Coastal Living Each property is tailored to meet different lifestyle needs:
Ground floor units feature spacious private gardens with views of the communal areas. First-floor apartments offer large terraces, some with partial sea views. Penthouses boast private solariums with sea views and outdoor kitchens, pergolas, jacuzzis, and artificial grass.
All homes include a private underground parking space and storage room, with first-phase completion scheduled for summer 2026.
Fully Equipped and Move-In Ready These homes come fully equipped for immediate occupancy, including:
Complete Mediterranean-style furniture and décor Fully fitted kitchens with appliances Independent utility rooms Underfloor heating throughout Ducted air conditioning (hot/cold) Bed linens and household goods Windows feature electric shutters and Climasun thermal-acoustic glass, while energy-efficient aerothermal systems provide hot water.
Resort-Style Communal Areas for Year-Round Enjoyment The development includes extensive communal amenities, such as:
Outdoor swimming pool for adults and children Children’s playground Landscaped green areas Wellness area in the basement with heated indoor pool, massage jets, sauna, and a fully equipped gym Every detail has been designed to provide residents and guests with a relaxing and luxurious Mediterranean experience.
Prime Location with Easy Access to Top Attractions This unbeatable location offers proximity to the best of the Costa Blanca and Costa Cálida:
Las Higuericas Beach – 150 m Lo Romero Golf Course – 10 km Dos Mares Shopping Center – 11 km Port of San Pedro del Pinatar – 8 km Murcia Airport – 30 km Alicante Airport – 65 km
Secure Your Coastal Investment Today If you are looking for a holiday home or a rental investment, this is your opportunity to own a premium property near the beach in one of the most sought-after areas. Contact us now to learn more or schedule your visit to Torre de la Horadada!
Features
Additional features
Licensed Tourist Property•Elevator/Lift•Communal Pool•Garden•Gated•Terrace: 22 Msq.•Jacuzzi•Parking - Space•Number of Parking Spaces: 1•Beach: 150 Meters•Furnished•Near Trees•Near Schools•Near Childrens Parks•Near Commercial Center•Near Bus Route•Location: Coastal, Urbanisation•Useable Build Space: 90 Msq.•Heating: Yes, Air Conditioning: Yes•Gym•Double Bedrooms: 3





