Apartment in Torrevieja
€185 000
Torrevieja, Alicante
Description
Stylish Residential Building 60 m away from El Acequion Beach at Torrevieja
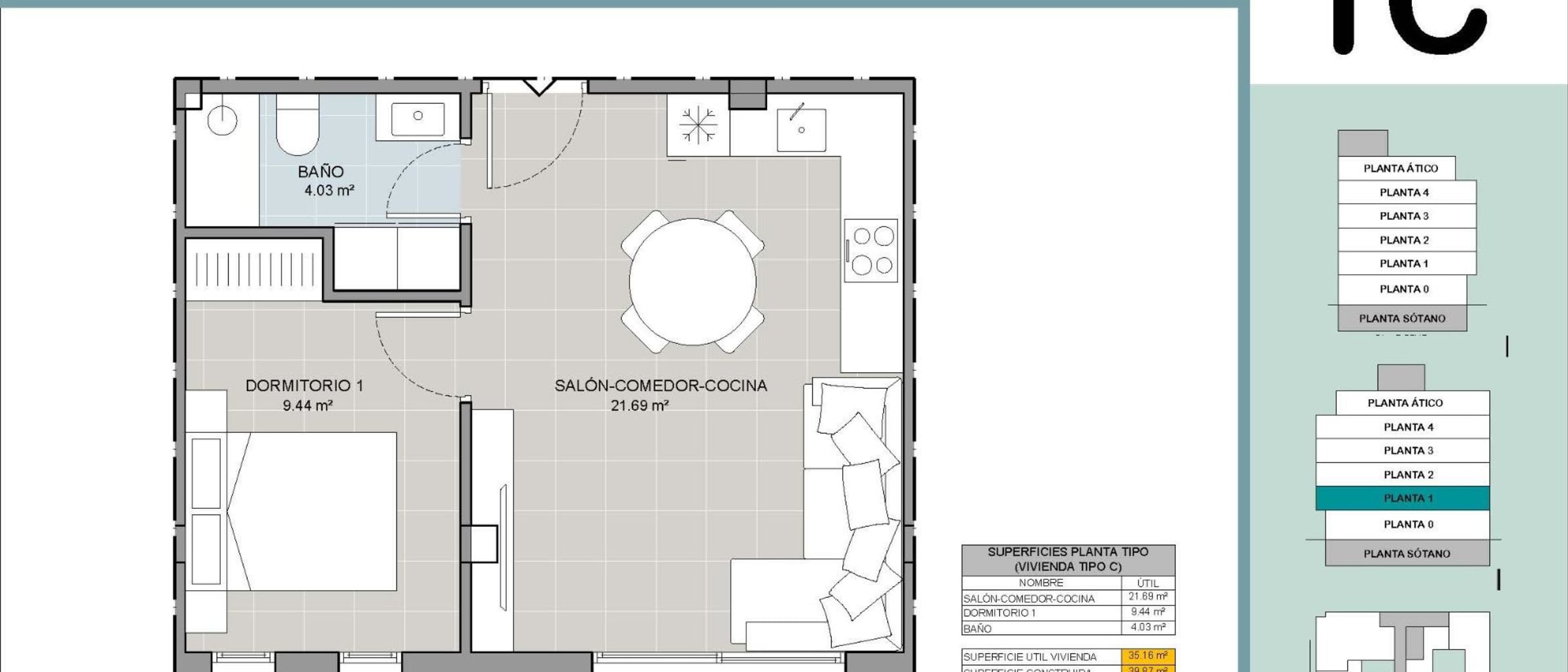
23 Functional Homes with a selection of 1, 2 and 3 bedroom apartments, and penthouses with large private terraces. Optional parking spaces at underground for additional convenience.
Enjoy life just steps from the Mediterranean. Surrounded by everything you need — supermarkets, schools, restaurants, parks, and beach bars — making it the perfect place to live year-round or enjoy as a second home.
Each unit is thoughtfully designed to maximize natural light, space, and functionality — with some houses with private terraces or laundry rooms.
On the rooftop, residents can enjoy a communal solarium with a relaxing lounge area and a swimming pool, perfect for soaking up the sun and sea breeze all year round.
Distances to key points: Acequión Beach: 60 m Torrevieja town centre: 500 m Marina Salinas marina: 1.5 km Torrevieja University Hospital: 5.5 km Villamartín golf course: 10 km Habaneras Shopping Centre: 3 km Alicante Airport: 45 km
High-end finishes in every home The homes have been built with top-quality materials and contemporary design: Exterior carpentry in aluminium with thermal break and double glazing Motorised blinds at bedrooms. Armoured entrance door Kitchen equipped with wall and base units Hot water produced by aerothermal system Air conditioning pre installation Baths with furnitures, mirrors and fixed glass at showers. Lift in the building
Live a stone's throw from the sea and the town centre Torrevieja is one of the most dynamic and growing coastal towns on the Costa Blanca, famous for its climate, beaches, salt flats and cultural life. This development is ideal as a permanent residence, investment or second home for holidays.
Contact us today for more information or to arrange a viewing and secure your home by the sea in Torrevieja.
Features
Additional features
Elevator/Lift•Communal Pool•Parking - Space•Beach: 60 Meters•Near Schools•Near Commercial Center•Near Bus Route•Location: Coastal•Useable Build Space: 35 Msq.•Air Conditioning: Pre-Installed•Double Bedrooms: 1





