Apartment in Los Alcazares
€292 000
Los Alcazares, Murcia
Description
New Build Residential Complex in Los Alcázares
Exclusive Homes on the Costa Cálida This new residential complex in Los Alcázares offers a unique opportunity to enjoy modern living in one of the most desirable areas of the Costa Cálida. Just 1.2 km from the beach and located on the frontline of the prestigious La Serena Golf course, this development perfectly combines a coastal lifestyle with the tranquility of golf surroundings. The charming town center of Los Alcázares is within walking distance, providing easy access to shops, restaurants, and all essential services.
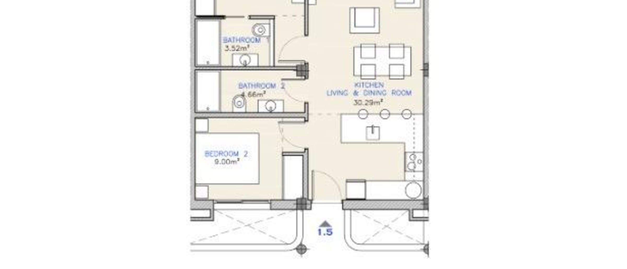
Modern Apartments and Exclusive Villas The promotion consists of 13 contemporary apartments with 2, 3, or 4 bedrooms and 4 exclusive villas with 3 bedrooms. Buyers can choose between ground floor or middle floor apartments with spacious terraces, or penthouses with private solariums. All properties include a private parking space and storage room in the underground garage, accessible by elevator.
High-Quality Features Every home has been designed with modern finishes and maximum comfort in mind. Key features include: Fully equipped bathrooms with furniture and shower screens Pre-installation of ducted air conditioning Motorized shutters in bedrooms
These details ensure that each property is practical, stylish, and ready to adapt to a variety of lifestyles.
A Prime Location with Excellent Connections Los Alcázares is strategically located for both leisure and convenience. The area offers direct access to main highways and is well connected to nearby cities and airports: Mar Menor beaches: 1.2 km La Serena Golf Club: adjacent to the complex Cartagena: 20 km Murcia Airport: 25 minutes Alicante Airport: 55 minutes Several golf courses within a 10 to 20 km radius
Lifestyle by the Sea and Golf Living in Los Alcázares means enjoying the best of the Mediterranean lifestyle. The nearby Mar Menor, Europe’s largest saltwater lagoon, offers warm, shallow waters ideal for swimming, sailing, and a wide variety of water sports. Golf lovers will appreciate the direct access to La Serena Golf, famous for its challenging design with water hazards on 16 of its 18 holes.
Your Mediterranean Home Awaits Whether you are looking for a permanent residence, a vacation retreat, or an investment opportunity, this new development in Los Alcázares offers the perfect balance of modern comfort, natural beauty, and excellent location. Contact us today to arrange a visit and secure your dream home on the Costa Cálida.
Features
Additional features
Elevator/Lift•Communal Pool•Gated•Terrace: 15 Msq.•Parking - Space•Number of Parking Spaces: 1•Beach: 1200 Meters•Near Golf / Golf Resort Property•Near Schools•Near Commercial Center•Location: Coastal, Urbanisation•Useable Build Space: 60 Msq.•Air Conditioning: Pre-Installed•Storage / Trastero•Double Bedrooms: 2





