Apartment in Torrevieja
€290 000
Torrevieja, Alicante
Description
New Build Apartments in the Heart of Torrevieja Just 400 m from Playa del Cura
Prime Location in Central Torrevieja This new residential building enjoys an unbeatable location in the center of Torrevieja, only 400 m from Playa del Cura. Surrounded by shops, supermarkets, restaurants and daily services, it offers everything you need within walking distance. The area also provides access to parks, leisure zones and green areas, creating a perfect balance between urban convenience and moments of relaxation.
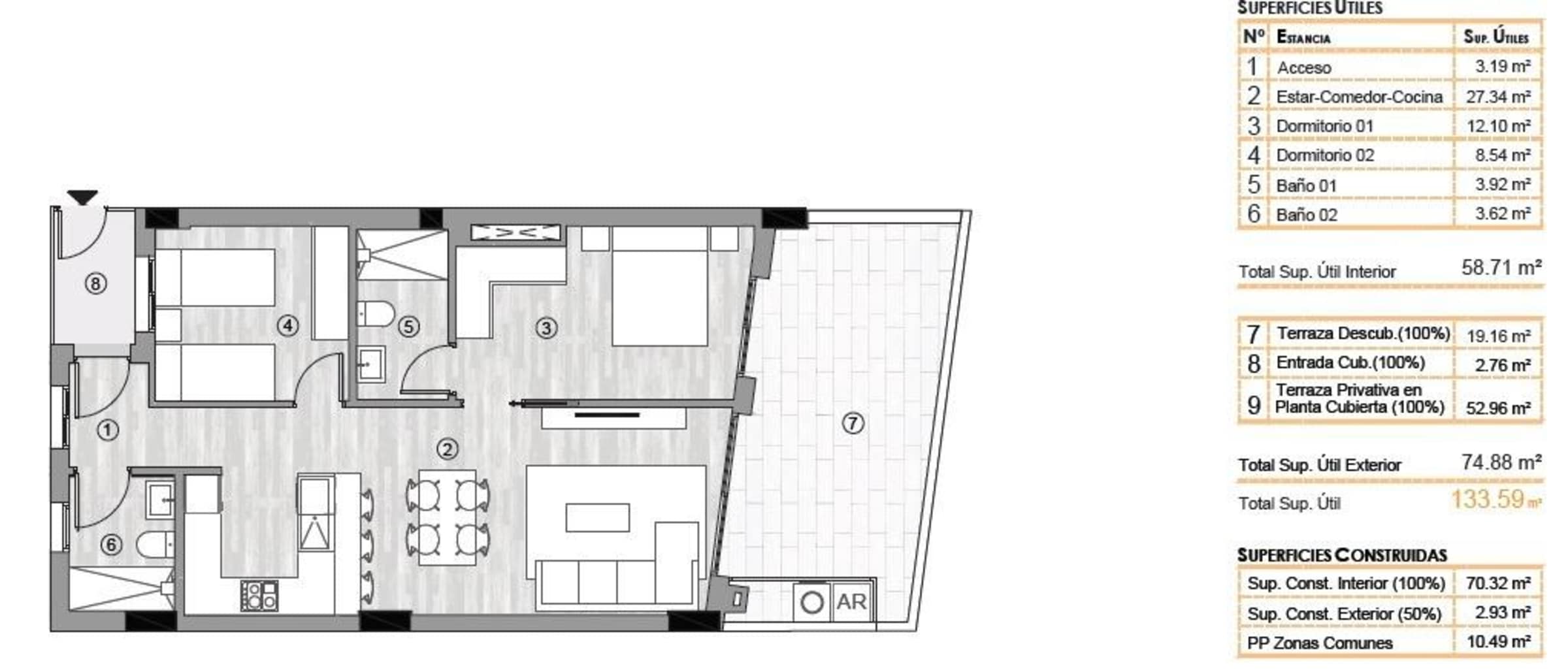
Modern Homes With 2 and 3 Bedrooms The development offers a selection of 2 and 3 bedroom apartments, including penthouses, some of them with private solariums. Each home is designed with a contemporary style, featuring open plan layouts, large terraces and integrated American style kitchens. Bathrooms come fully equipped with furniture, shower screens and underfloor heating. The kitchens include appliances, and each apartment has preinstallation for ducted air conditioning. Optional underground parking and storage rooms are available.
Resort Style Facilities for Wellbeing Residents can enjoy a range of exclusive amenities. The ground floor features a fully equipped gym, ideal for daily workouts. The rooftop solarium provides a true relaxation oasis with sunbeds, a Finnish sauna and a mini pool. Both the elevator and stairs connect directly to the rooftop for maximum convenience and accessibility.
Living in a Unique Natural and Coastal Environment Torrevieja is known for its warm Mediterranean climate, with an average annual temperature of 20ºC, making it a perfect place to live year round. The city is famous for its natural salt lagoons and the protected Natural Park of La Mata and Torrevieja, located only 4 km from the development. Its pink and green lakes, scenic walking routes and rich biodiversity offer a healthy and inspiring lifestyle.
Distances to Key Points of Interest Playa del Cura 0.4 km Torrevieja Marina 1 km La Mata Natural Park 4 km Villamartin Golf 8 km Alicante Airport 45 km Murcia Airport 60 km
Experience the Mediterranean Lifestyle Do not miss the opportunity to own a modern home in one of the Costa Blanca’s most desirable coastal cities. Contact us today to arrange a visit and secure your place in this exceptional new development.
Features
Additional features
Elevator/Lift•Communal Pool•Gated•Terrace: 14 Msq.•Parking - Space•Beach: 400 Meters•Near Schools•Near Childrens Parks•Near Commercial Center•Near Bus Route•Location: Coastal•Useable Build Space: 71 Msq.•Air Conditioning: Pre-Installed•Gym•Double Bedrooms: 2





