House in San Javier
San Javier, Murcia
Features
Description
Newly Built Townhouses in San Javier - Modern Design and Privileged Location
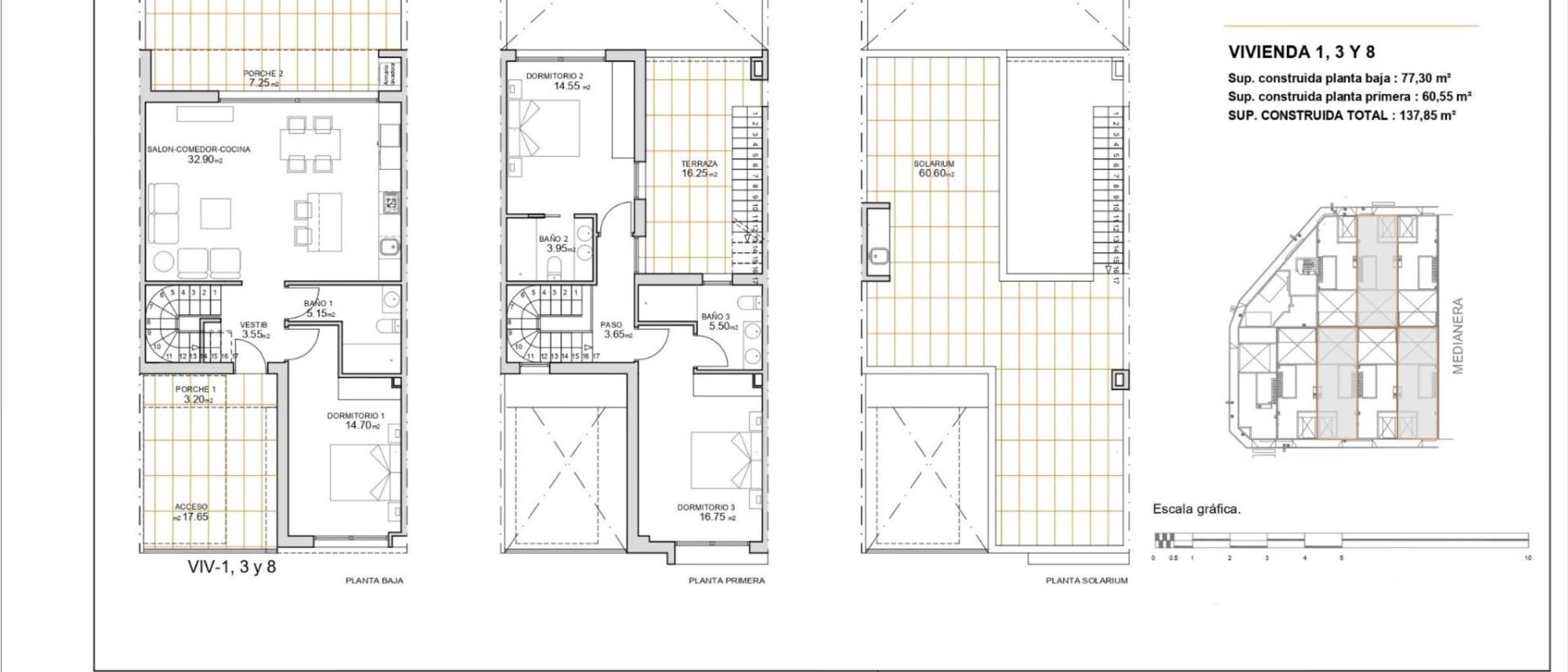
Contemporary Design Townhouses with Private Swimming Pool Discover this exclusive complex of 9 brand new townhouses in San Javier, Murcia, designed to offer maximum comfort and a modern lifestyle. Each property has a private swimming pool, terrace, solarium and parking space, providing an ideal space for relaxation and enjoyment all year round.
The homes have been built with high quality materials and an open-plan design that makes the most of natural light. They are perfect for both a permanent residence and a holiday home on the Costa Cálida.
High Quality Distribution and Equipment Each townhouse has:
3 spacious bedrooms with fitted wardrobes and chest of drawers. 3 fully fitted bathrooms with furniture, mirrors and screens. Open concept kitchen, fully fitted and with white goods included. Spacious living-dining room, with large windows that connect to the terrace. Private swimming pool with shower and garden with artificial grass. Solarium with summer kitchen, perfect to enjoy the Mediterranean climate. Pre-installation of ducted air conditioning on each floor. PVC exterior carpentry with double glazing, guaranteeing thermal and acoustic insulation. Security entrance door, for greater peace of mind and protection.
Strategic location in San Javier San Javier is a coastal town with a wide range of services, sports facilities and leisure areas. The location of this residential allows quick access to:
Beaches of the Mar Menor - Only 5 minutes by car. Beaches of the Mediterranean Sea - 10 minutes away. Golf Courses - Various options in the area, ideal for golf lovers. Shopping centres and services - Everything you need just a few minutes away. Murcia-Corvera Airport - 30 minutes away. Alicante Airport - 45 minutes away.
Enjoy the Best Climate and Quality of Life in San Javier San Javier is an excellent option for those looking for a property close to the sea, with a privileged climate and access to all kinds of outdoor activities.
Don't miss the opportunity to purchase one of these exclusive homes. Contact us today for more information or to schedule a visit.





