Villa in Torre Pacheco
€785 000
Torre Pacheco, Murcia
Description
Modern Semi-Detached Villas at Santa Rosalía Lake and Life Resort - A New Standard of Mediterranean Luxury
Contemporary Design Inspired by the Mediterranean Discover these exclusive new semi-detached villas located in the prestigious Santa Rosalía Lake and Life Resort, a unique residential destination on the Costa Cálida. Inspired by Mediterranean architecture, these villas combine clean lines, natural light, and modern comfort to create a harmonious and elegant living environment. Each villa is designed to provide a perfect balance between luxury and relaxation, making it ideal as a permanent residence, holiday home, or investment opportunity.
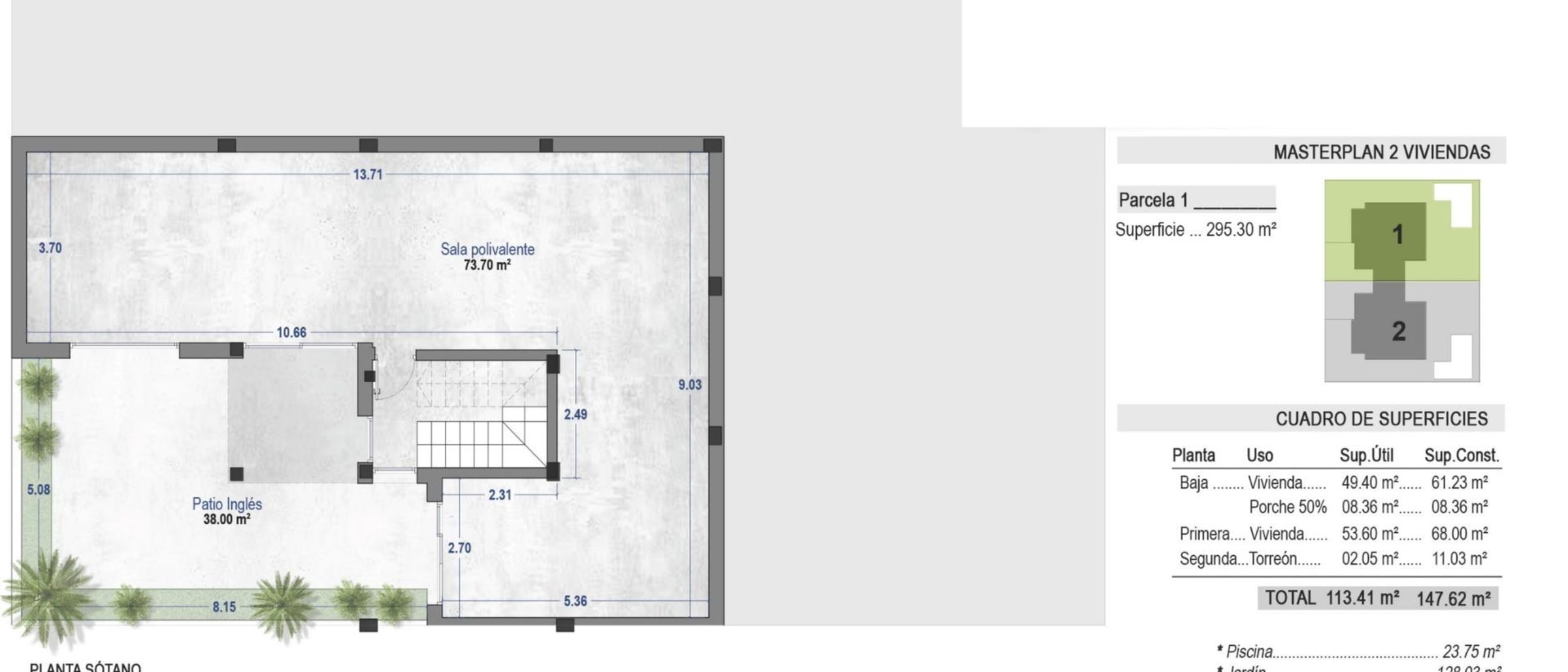
Spacious Layout and High-End Finishes Each villa offers 220 m² of living space distributed across a basement, two main floors, and a rooftop solarium, set on generous 295 m² plots. The homes feature 4 bedrooms and 4 bathrooms (3 en suite), providing ample space for family and guests. The private pool with jacuzzi area, large terraces, and rooftop solarium with summer kitchen and toilet invite you to enjoy the region’s exceptional climate all year round.
Premium specifications include: Fully furnished kitchen with Bosch appliances Bathrooms with furniture, mirrors, shower screens, and towel heaters Armoured entrance door and motorized access gate for vehicles LED spotlights throughout the interior and exterior Ducted air conditioning (installed on both floors) Private pool with jacuzzi area 2 photovoltaic solar panels for energy efficiency Summer kitchen in the garden Underground level with English patio for natural light and ventilation
Resort-Style Living at Santa Rosalía Santa Rosalía Lake and Life Resort is a private, gated community with 24-hour security, designed around an impressive 126,000 m² of green areas. Residents enjoy walking and cycling paths, sports facilities, paddle and tennis courts, mini-golf, gardens, dog parks, and leisure zones. The clubhouse and the resort’s centerpiece-a stunning 17,000 m² crystal-clear lagoon surrounded by white sandy beaches and palm trees-offer a true Caribbean-inspired lifestyle. The lagoon even features two islands, one with its own bar, and several beach chiringuitos for relaxed dining.
Prime Location on the Costa Cálida The development enjoys a central location within the resort, close to the lagoon and beach club. It’s less than 4 km from Los Alcázares Beach, 15 minutes from Cartagena, and only 22 km from Murcia International Airport. Golf enthusiasts will find several top-rated courses within a short drive, while local marinas, restaurants, and shopping areas complete the vibrant lifestyle offering.
Your Exclusive Mediterranean Retreat Awaits Experience the perfect combination of luxury, comfort, and wellbeing in the heart of the Costa Cálida. Contact us today to schedule a visit and discover your dream villa at Santa Rosalía Lake and Life Resort.
Features
Additional features
Private Pool•Communal Pool•Garden•Gated•Terrace: 194 Msq.•Solarium: Yes•Jacuzzi•BBQ•Parking - Space•Number of Parking Spaces: 1•Beach: 3600 Meters•Near Schools•Near Childrens Parks•Near Commercial Center•Location: Coastal, Urbanisation•Useable Build Space: 113 Msq.•Under-Build / Basement•Double Bedrooms: 4•Toilet: 1





