Villa in Torre Pacheco
Torre Pacheco, Murcia
Features
Description
Frontline Lake Luxury Villa in Santa Rosalia Lake and Life Resort Murcia
Exclusive New Build Villa in a Unique Resort Setting
Discover this exceptional new build villa located frontline to the lake in the prestigious Santa Rosalia Lake and Life Resort in the Region of Murcia. Set on a generous 500 m2 plot, this property offers a rare opportunity to enjoy modern architecture, privacy and a resort lifestyle in one of the most innovative developments in southern Spain.
The villa is distributed over ground floor, basement and rooftop solarium, combining contemporary design with spacious living areas and high quality finishes. Its privileged position provides direct views of the stunning artificial lake, creating a peaceful and exclusive environment.
Spacious Design with Double Height Living Area
The main floor features a bright open plan living and dining area with a spectacular double height ceiling, enhancing the sense of space and natural light. The modern kitchen comes fully equipped with BOSCH appliances and connects seamlessly with the outdoor terrace and private swimming pool.
The property includes three bedrooms and three bathrooms, as well as a guest toilet. The layout is designed to provide both comfort and functionality, making it ideal for family living or entertaining guests.
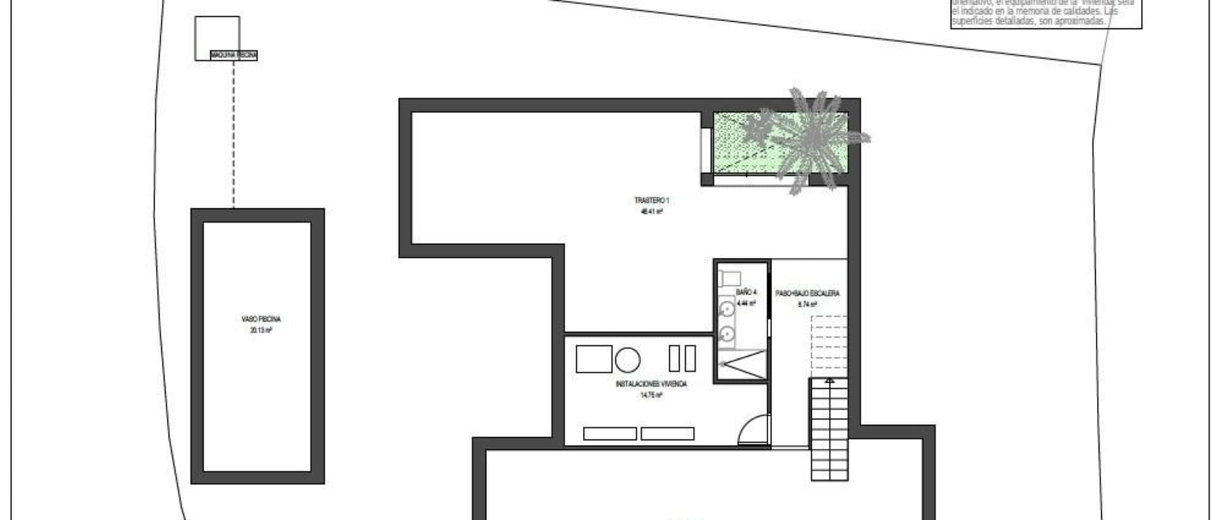
Basement with Natural Light and Customization Options
A standout feature of this villa is the spacious basement with natural light provided by English patios. This level offers great flexibility and can be customized into additional living areas such as a gym, home cinema, guest accommodation or office.
The basement includes pre installation for air conditioning and connections for water and electricity, allowing owners to tailor the space according to their needs.
Private Solarium and Outdoor Living Spaces
The rooftop solarium provides an ideal space for relaxation and outdoor living, with pre installation for a jacuzzi and open views over the lake and surrounding resort. The villa also includes a private swimming pool and landscaped outdoor areas designed to enjoy the Mediterranean climate year round.
High Quality Features and Energy Efficiency
The property is built with premium materials and includes a reinforced security entrance door, ducted air conditioning, six photovoltaic solar panels and high quality finishes throughout.
Resort Lifestyle with Exceptional Amenities
Santa Rosalia Lake and Life Resort is a gated community with 24 hour security, designed around a 126000 m2 green area. At its heart lies a spectacular crystal clear lake of nearly 17000 m2, surrounded by white sandy beaches, palm trees and leisure areas.
Residents can enjoy walking and cycling paths, sports facilities, paddle and tennis courts, mini golf, dog parks, clubhouse and beach style bars, creating a unique lifestyle experience.
Prime Location Near Beaches and Golf Courses
The resort is ideally located less than 4 km from the beaches of the Mar Menor and the town of Los Alcazares. Cartagena is just 15 km away and Murcia International Airport is 22 km away. Several golf courses are also located within a short drive.
Ideal Investment and Luxury Lifestyle Opportunity
This frontline lake villa offers a unique opportunity to enjoy luxury living in a resort environment with exceptional amenities and strong investment potential.
Contact us today for more information or to arrange a private viewing of this exclusive villa in Santa Rosalia Lake and Life Resort.





