Villa in Benissa
€2 300 000
La Fustera, Benissa, Alicante
Description
This modern villa is located on a quiet plot of 1448 m2 in Benissa and offers breathtaking views of the coast from the Cap D'or in Moraira to the Peñon de Ifach in Calpe. The villa is located on a steep plot and consists of several cubes distributed over 4 floors alternating with terraces and green areas.
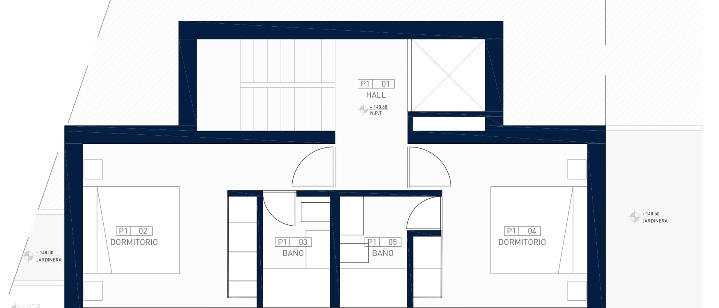
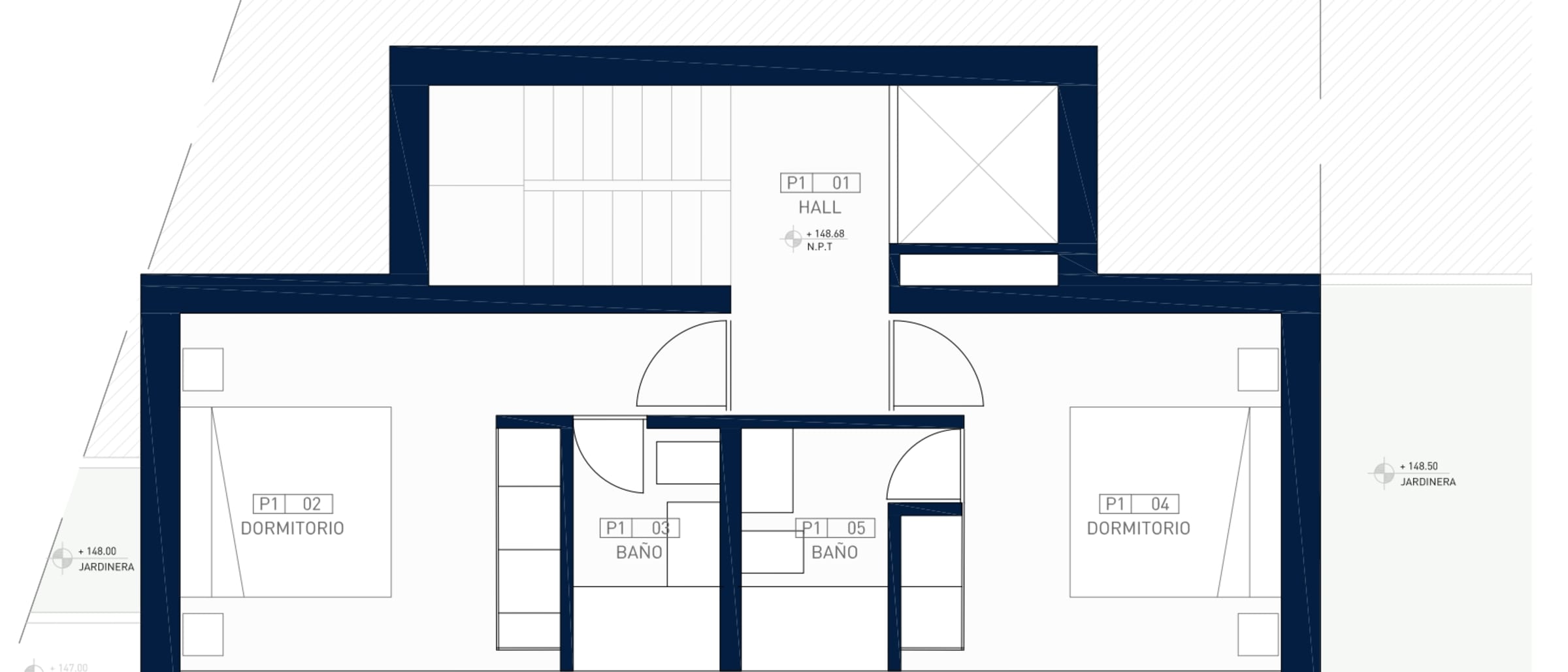
Because of this layout you have a beautiful sea view from every room. At street level there is parking space for two cars. Through a staircase you reach the top floor, where there is a hall and the stairs and elevator to the other floors.
There is the possibility of also installing an elevator from the parking area to the hall to create maximum comfort. One floor below are two double bedrooms each with an en suite bathroom and with access to a shared balcony.
Another floor below are another two double bedrooms each with an en suite bathroom and access to a large shared terrace. There is also a laundry room and two green areas on this floor. The bone floor consists of a large living-dining room with a stove, a spacious open kitchen with a large island, a guest toilet and a storage room.
Large sliding windows allow access to the poolside terrace from the living room. There is also a barbecue and the pool is surrounded by green areas. The villa has underfloor heating and air conditioning.
The beautiful coast of Benissa is only 2 km away and offers several idyllic beaches perfect for sunbathing, snorkeling, etc. Moreover, the villa is located in a very central location with regard to the surrounding villages and towns.
In just 10 minutes you can reach the large sandy beaches of Calpe as well as the historic center of Benissa. And in about 20 minutes you are in the tourist port village of Moraira.





