Villa in Torrevieja
€750 000
Torrevieja, Alicante
Description
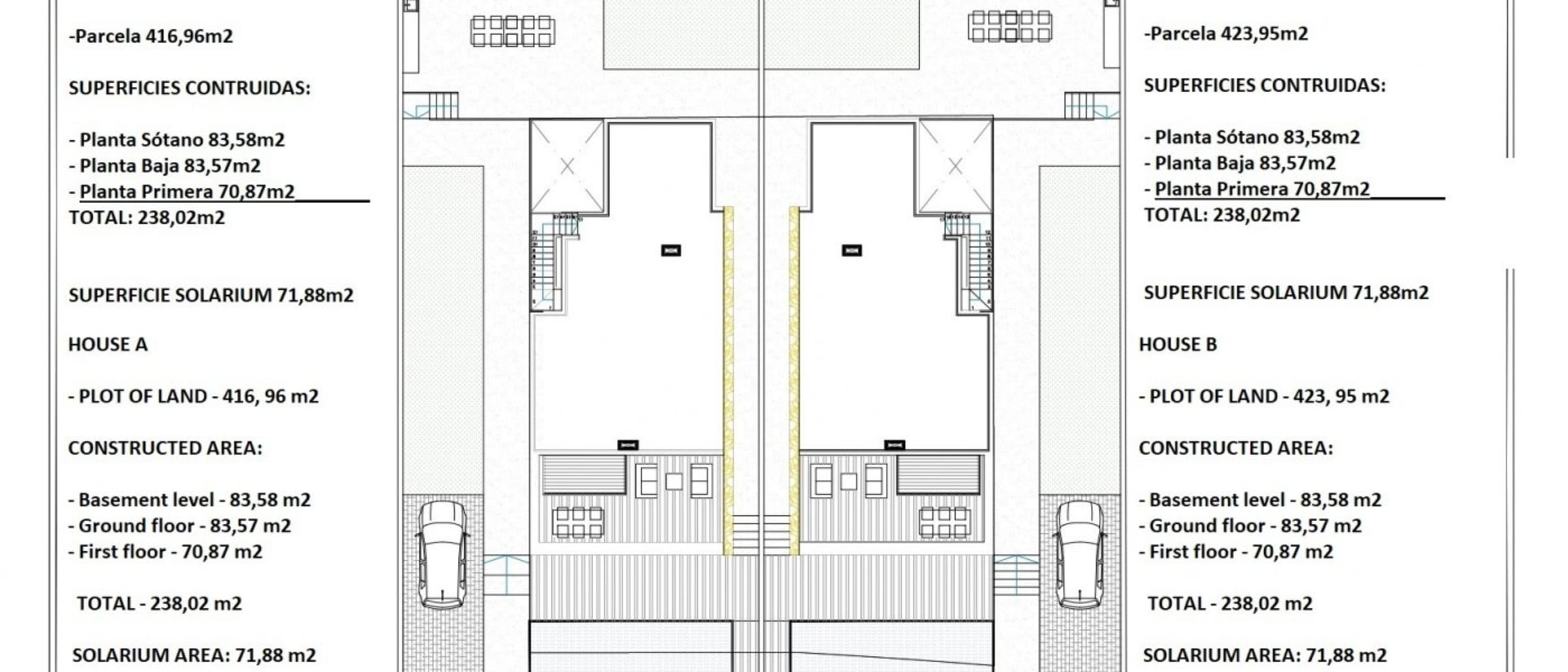
2 NEW BUILD VILLAS IN TORREVIEJA
2 New Beautiful villas in Torrevieja.
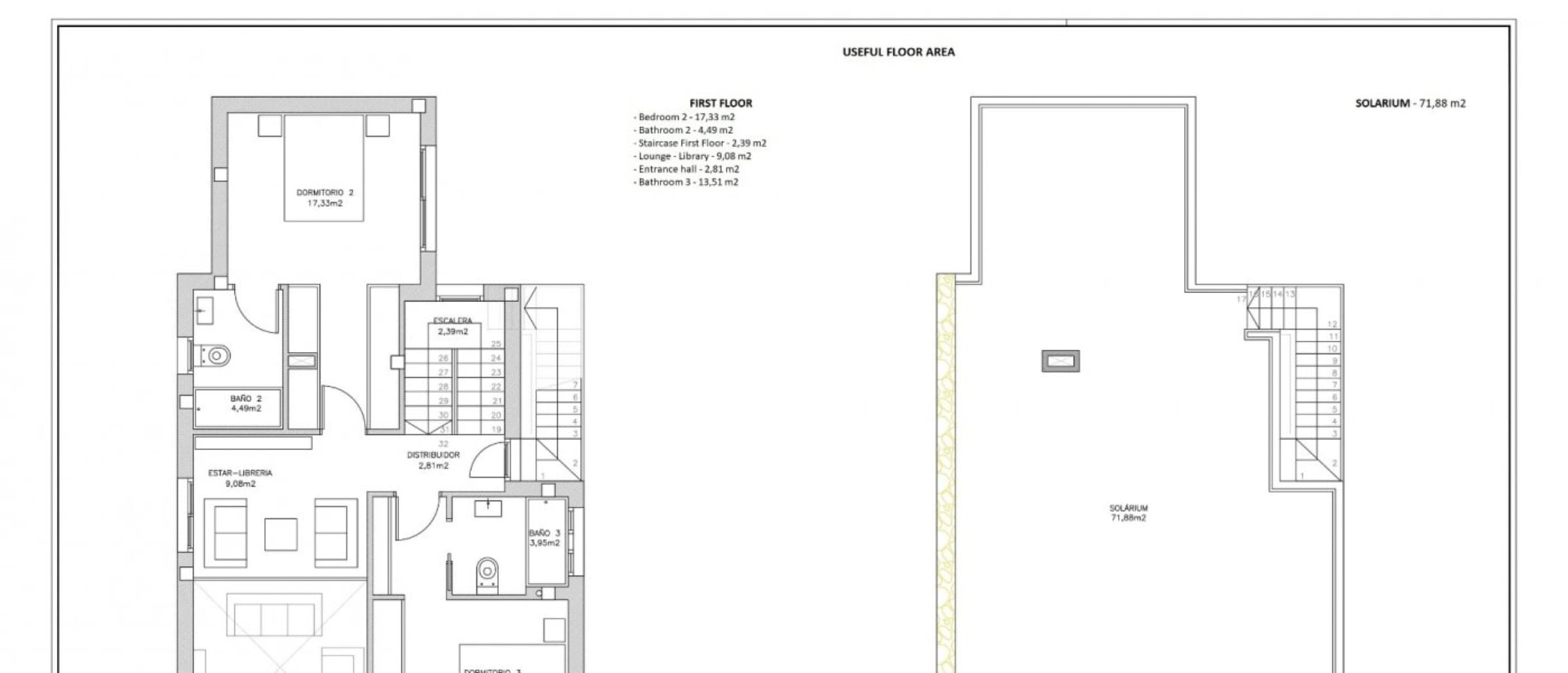
Villas has 4 bedrooms, 4 bathrooms, open plan kitchen with the lounge area, fitted wardrobes, private garden with the pool and off road parking space, private solarium and basement.
Villas located 15 minutes walk to the famous Playa de La Mata (5 minutes by car).
Torrevieja is a Spanish town in the province of Alicante, on the Costa Blanca. It is known for its typically Mediterranean climate and coastline. It has boardwalks with resorts along its sandy beaches.
The small Museum of the Sea and Salt houses exhibitions on the fishing and salt history of the city.
In the interior, the Lagunas de La Mata-Torrevieja Natural Park has trails and two salty lagoons, one pink and the other green.
Alicante airport located 40 minutes away and Murcia airport about 1 hour away.
Features
Additional features
Private Pool•Garden•Gated•Terrace: 102 Msq.•Solarium: Yes•Parking - Space•Number of Parking Spaces: 1•Beach: 1200 Meters•Near Trees•Near Schools•Near Commercial Center•Near Bus Route•Location: Coastal•Useable Build Space: 180 Msq.•Air Conditioning: Pre-Installed•Storage / Trastero•Under-Build / Basement•Double Bedrooms: 4





