Villa in Benissa
Benissa, Alicante
Features
Description
Moderne villa met panoramisch zeezicht in La Fustera, Benissa Costa Deze exclusieve nieuwbouwvilla is gelegen op een perceel van 800 m2, op slechts een steenworp afstand van het strand van La Fustera.
De architectuur combineert mediterrane warmte met hedendaagse elegantie en maakt gebruik van natuurlijke materialen zoals natuursteen en hout, aangevuld met zachte, neutrale tinten. Hierdoor sluit de woning perfect aan bij het omliggende kustlandschap.
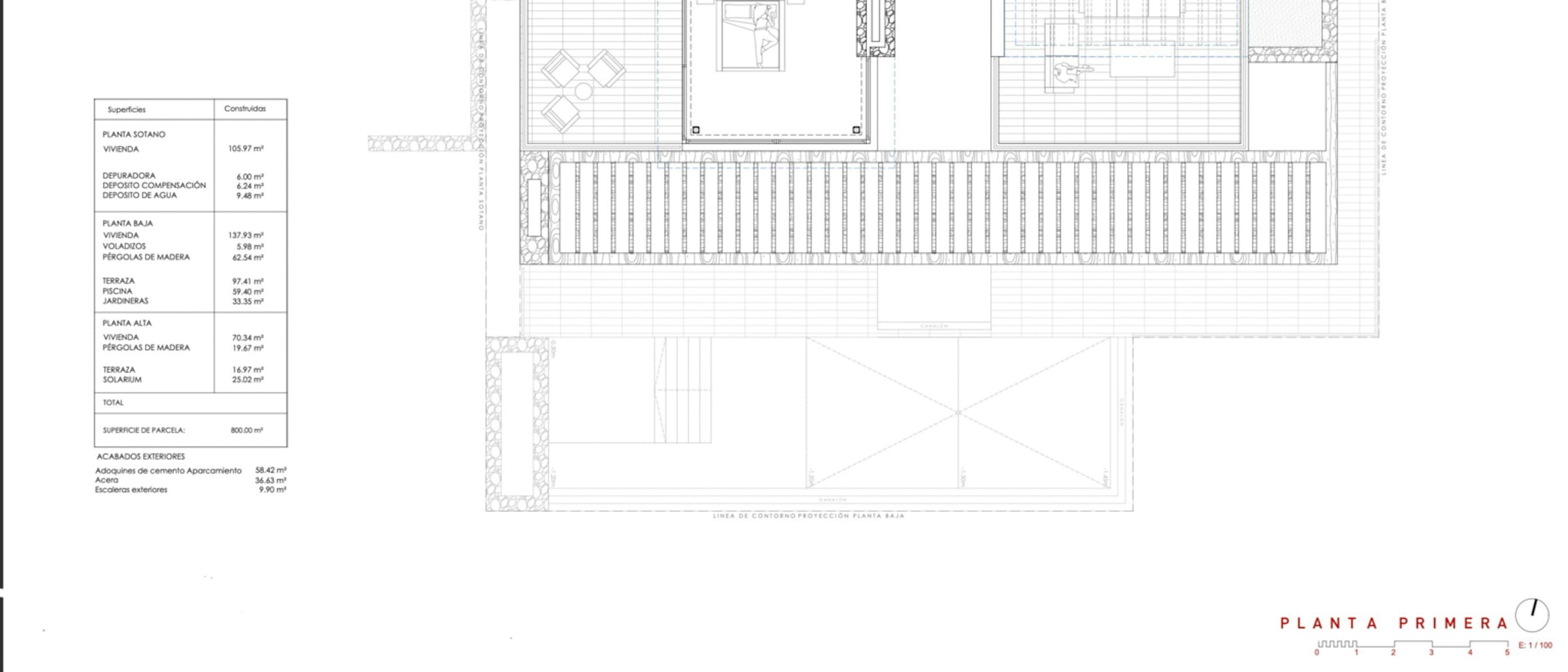
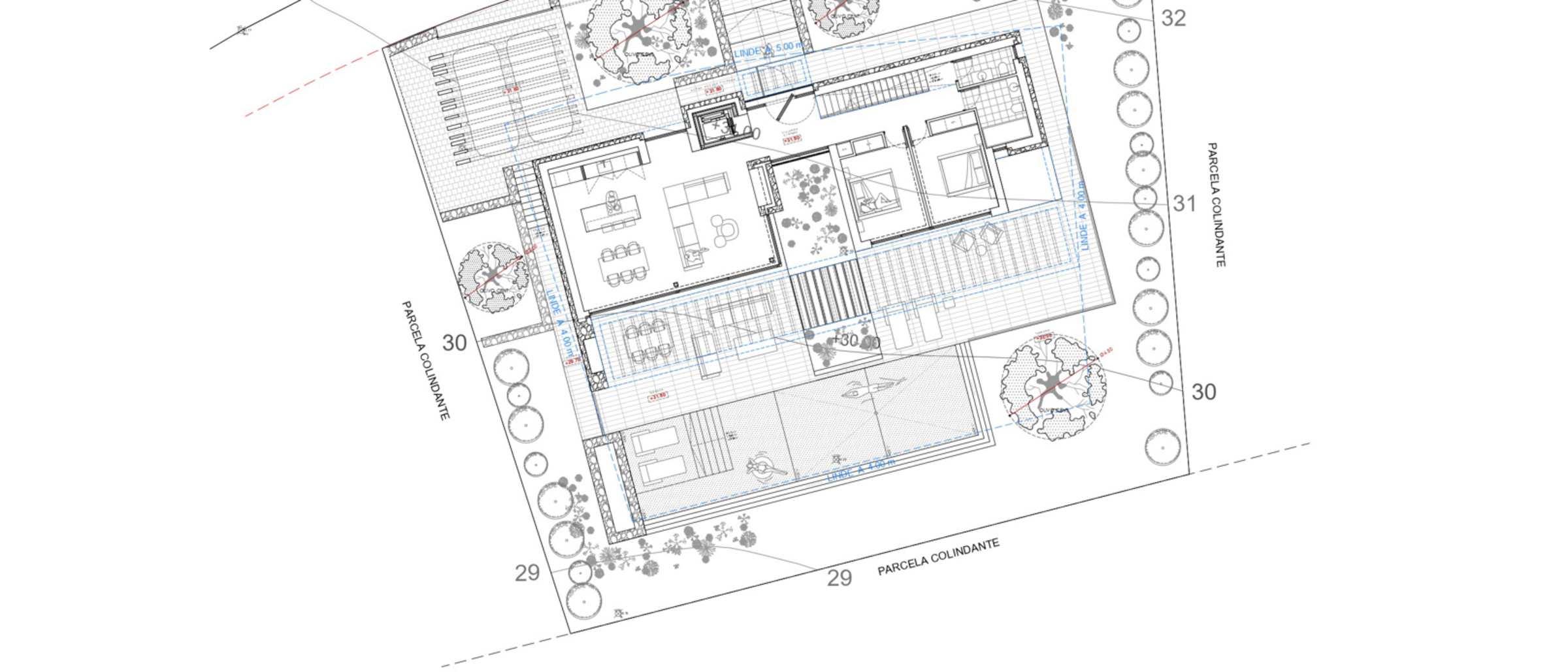
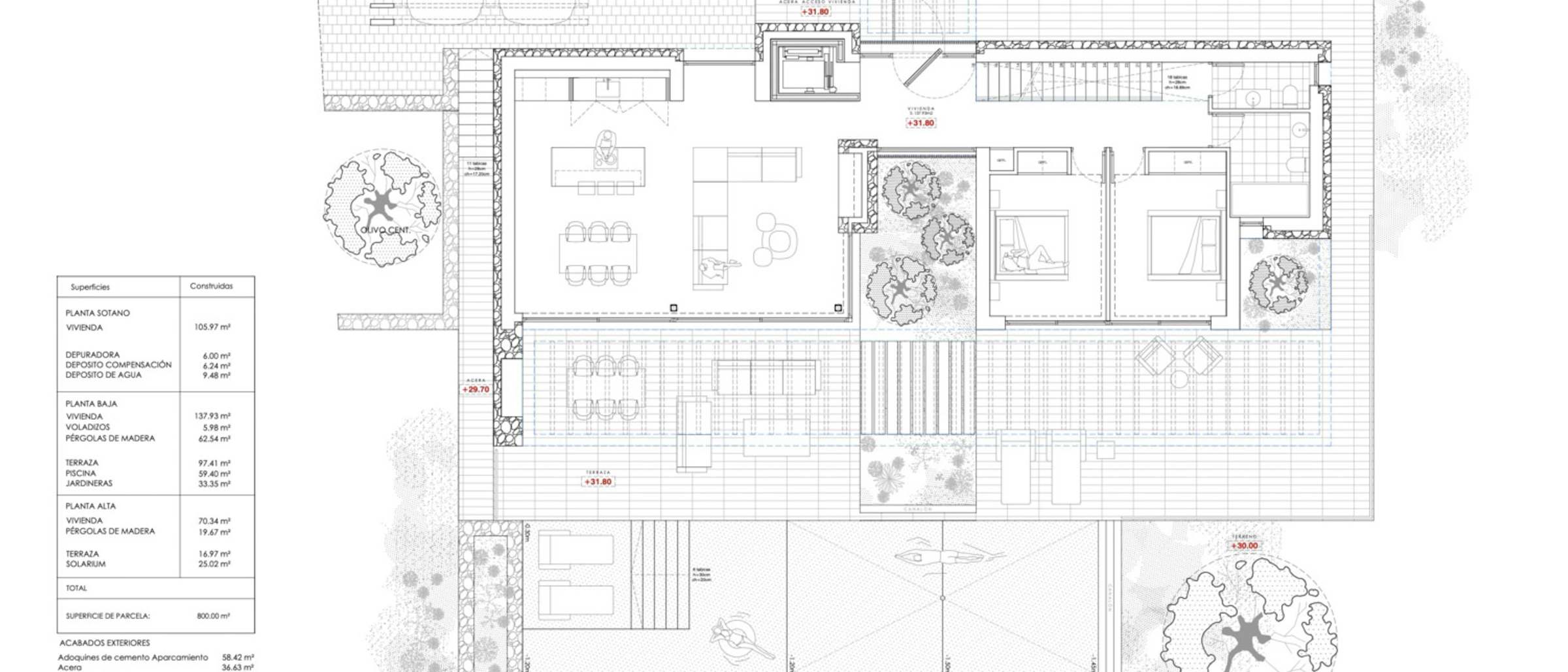
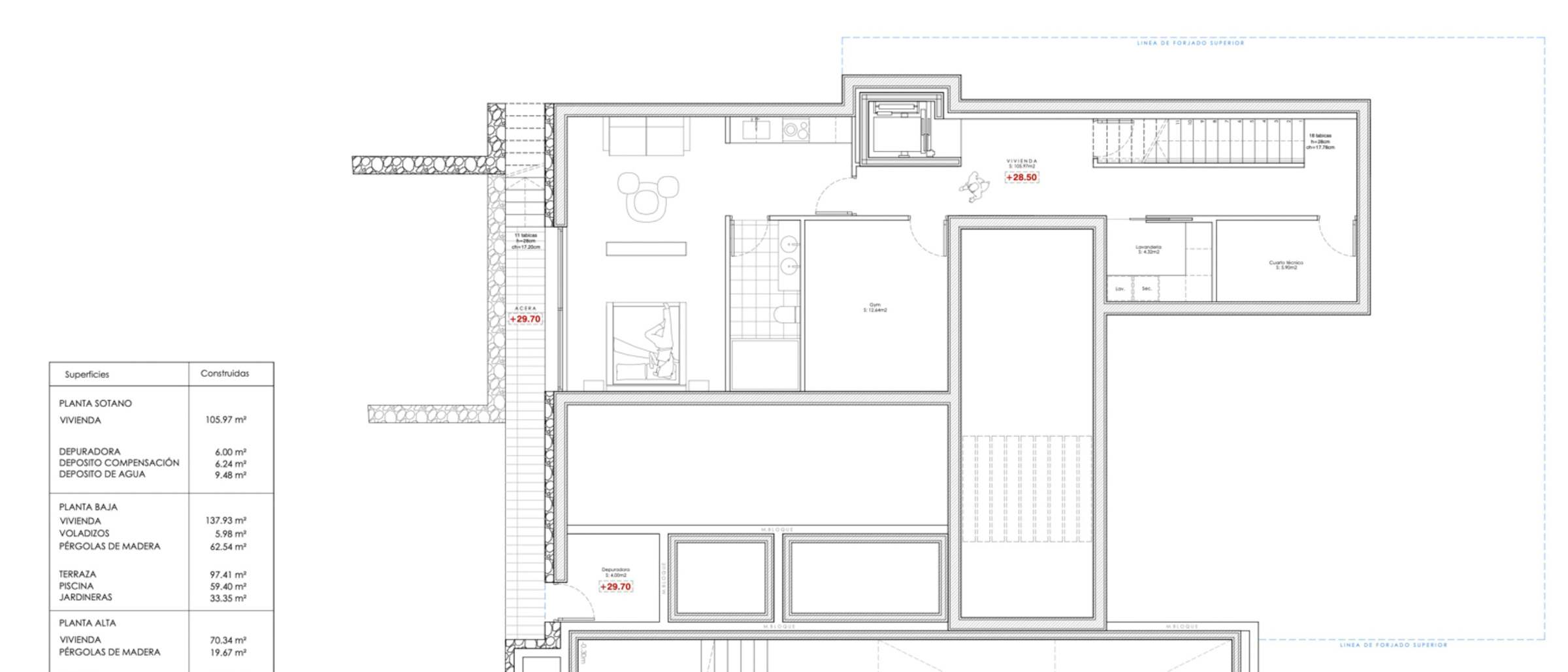
Met een totale bebouwde oppervlakte van 716 m2, verdeeld over drie niveaus – kelder, begane grond en eerste verdieping – biedt de villa een ideale balans tussen functionaliteit, design en comfort. De kelderverdieping van 105,97 m2 is ontworpen met het oog op zowel praktisch gebruik als ontspanning.
Deze verdieping beschikt over een volledig uitgeruste fitnessruimte, een wasruimte en technische ruimtes. Daarnaast bestaat de mogelijkheid om extra ruimtes in te richten als wijnkelder, bioscoop of multifunctionele ruimte.
Ook bevinden zich hier het filtersysteem van het zwembad en de watertanks, wat zorgt voor een efficiënte werking van alle technische installaties. De begane grond, met een oppervlakte van 137,93 m2, is opgezet als een lichte open leefruimte die het mediterrane woongevoel perfect weerspiegelt.
De ruime woonkamer, eetkamer en keuken staan via grote kamerhoge ramen in directe verbinding met het hoofdterras en het infinity zwembad, waarbij het panoramische zeezicht centraal staat. Op deze verdieping bevinden zich tevens twee tweepersoonsslaapkamers, een complete badkamer en een gastentoilet.
Buiten zorgt een houten pergola voor schaduw bij de lounge- en eetgedeeltes, omringd door weelderige tuinen, zonneterrassen en een infinity zwembad van 59,40 m2 dat visueel overgaat in de zee. De bovenverdieping van 70,19 m2 is voorbehouden aan de master suite, een privé toevluchtsoord met inloopkast, en-suite badkamer en een ruim privéterras met adembenemend uitzicht over de Middellandse Zee.
Daarnaast is er een tweede slaapkamer of kantoorruimte. Deze verdieping biedt ook toegang tot een solarium van 25,02 m2, ideaal om te ontspannen in de zon en te genieten van de rust en de omgeving. Gelegen in een rustige woonstraat, omringd door moderne villa’s, geniet deze woning van een uitzonderlijke locatie op slechts 3 minuten wandelafstand van het strand van La Fustera, de Mandala Beach Bar Restaurant en essentiële voorzieningen zoals supermarkten en lokale diensten.
Ontworpen met een sterke focus op licht, ruimte en een vloeiende overgang tussen binnen en buiten, weerspiegelt deze villa de moderne mediterrane levensstijl: elegant, ontspannen en in perfecte harmonie met het spectaculaire panoramische zeezicht.





